Dom z widokiem na Jezioro Sławskie

Dom (Bliźniak) na sprzedaż
729 000,00 PLN , Pow. 99,50 m2
Drukuj ofertę
Drukuj ofertę
Typ nieruchomości:
Dom
Powierzchnia:
99,50 m2
Typ transakcji:
sprzedaż
Liczba pokoi:
3
Lokalizacja:
Radzyń , Słoneczna
Rok budowy:
1989
Liczba pięter:
1
Numer oferty:
680474
Powierzchnia działki:
320 m2
Cena za m2:
7 326,63 PLN
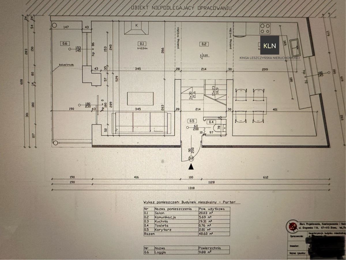
Na sprzedaż dom w zabudowie bliźniaczej o powierzchni całkowitej 99,5 m2 położony w drugiej lini brzegowej w Radzyniu, na działce o powierzchni 320 m2. Nieruchomość leży w cichej części miejscowości, z dala od głównej drogi.

Na parterze znajdują się:

-pokój dzienny z wyjściem na taras- 20 m2
- kuchnia- 19,3 m2
- wc- 0,76 m2
- korytarze- 8,5 m2
- taras- 9,88 m2

Na piętrze:
- sypialnia- 19 m2
- sypialnia z wyjściem na taras- widok na jezioro- 20,88 m2
- łazienka- 2,71 m2
- korytarz i schody- 8,22 m2



Dom nie wymaga większych nakładów finansowych, jest gotowy do zamieszkania.
Budynek jest częściowo podpiwniczony, a także częściowo posiada poddasze użytkowe. W piwnicy znajduje się piec na pellet, hydrofor oraz bojler.
Dom ogrzewany jest pelletem oraz  kominkiem, posiada własne ujęcie wody ze studni głębinowej oraz szambo z możliwością podłączenia do sieci miejskiej.

Suche bory sosnowe a także liczne jeziora tworzą specyficzny mikroklimat korzystny dla ludzi. Więc jeśli poszukujesz ciszy i spokoju i chcesz zamieszkać na łonie natury to ta oferta jest dla Ciebie idealna! 

Zapraszam na prezentację!

Więcej informacji pod numerem tel.: 784 551 229

Kinga Leszczyńska Nieruchomości
ul. Daszyńskiego 21, Głogów

www.kingaleszczynska.pl


Treść niniejszego ogłoszenia nie stanowi oferty handlowej w rozumieniu Kodeksu Cywilnego. Treść ma charakter informacyjny i zalecamy ich osobistą weryfikację. Kontaktując się z biurem Klient wyraża zgodę na przetwarzanie danych osobowych zgodnie z przepisami ustawy z dnia 29 sierpnia 1997 roku o ochronie danych osobowych / Dz.U.Nr. 133 poz. 883/. Klientowi przysługuje prawo do wglądu do swoich danych osobowych i ich aktualizacji.

Wszelkie dane dotyczące nieruchomości uzyskane zostały na podstawie oświadczenia właściciela.

Kupując nieruchomość z rynku wtórnego do ceny zakupu nieruchomości należy doliczyć 2% podatku od czynności cywilnoprawnych, koszty notarialne oraz koszt obsługi przez biuro nieruchomości.






Nieprawidłowy adres E-mail